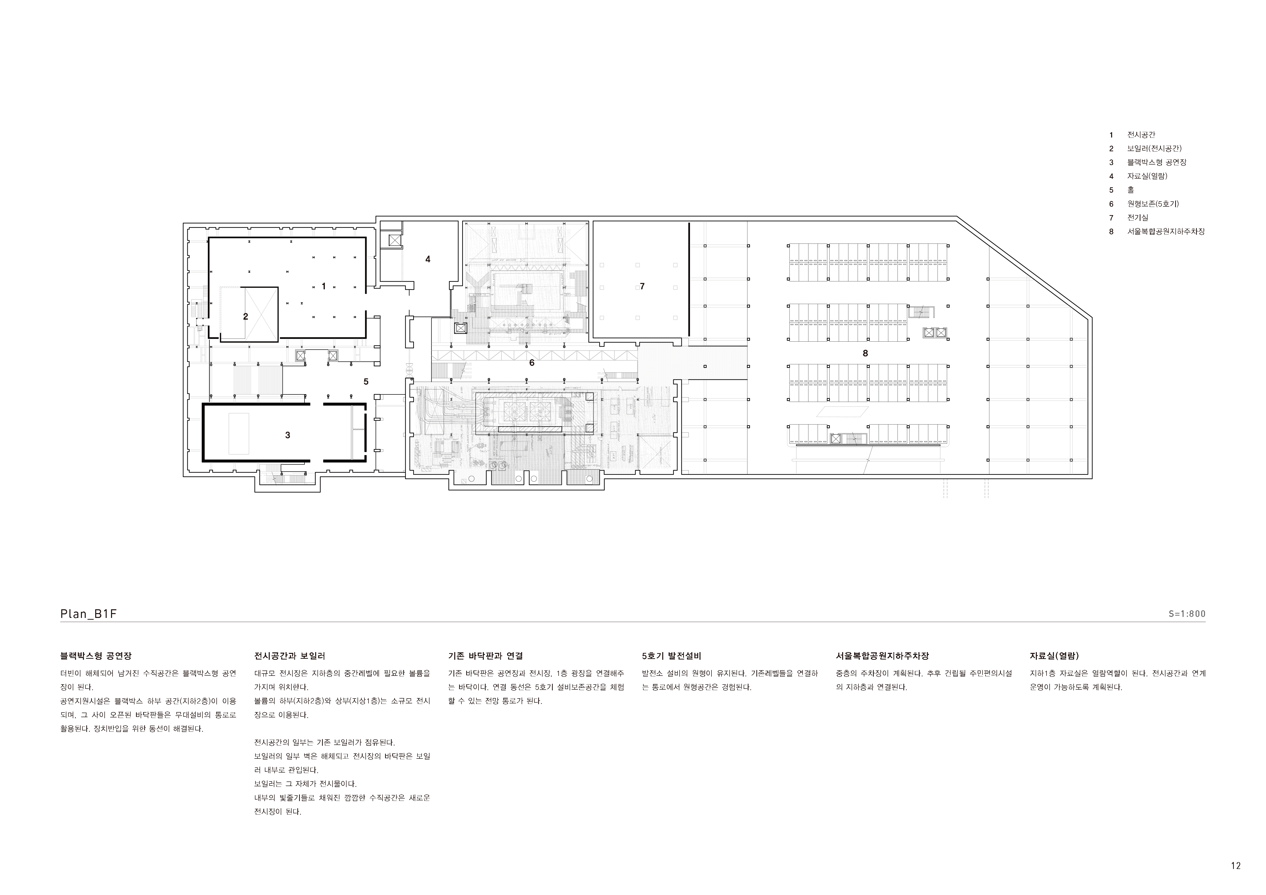
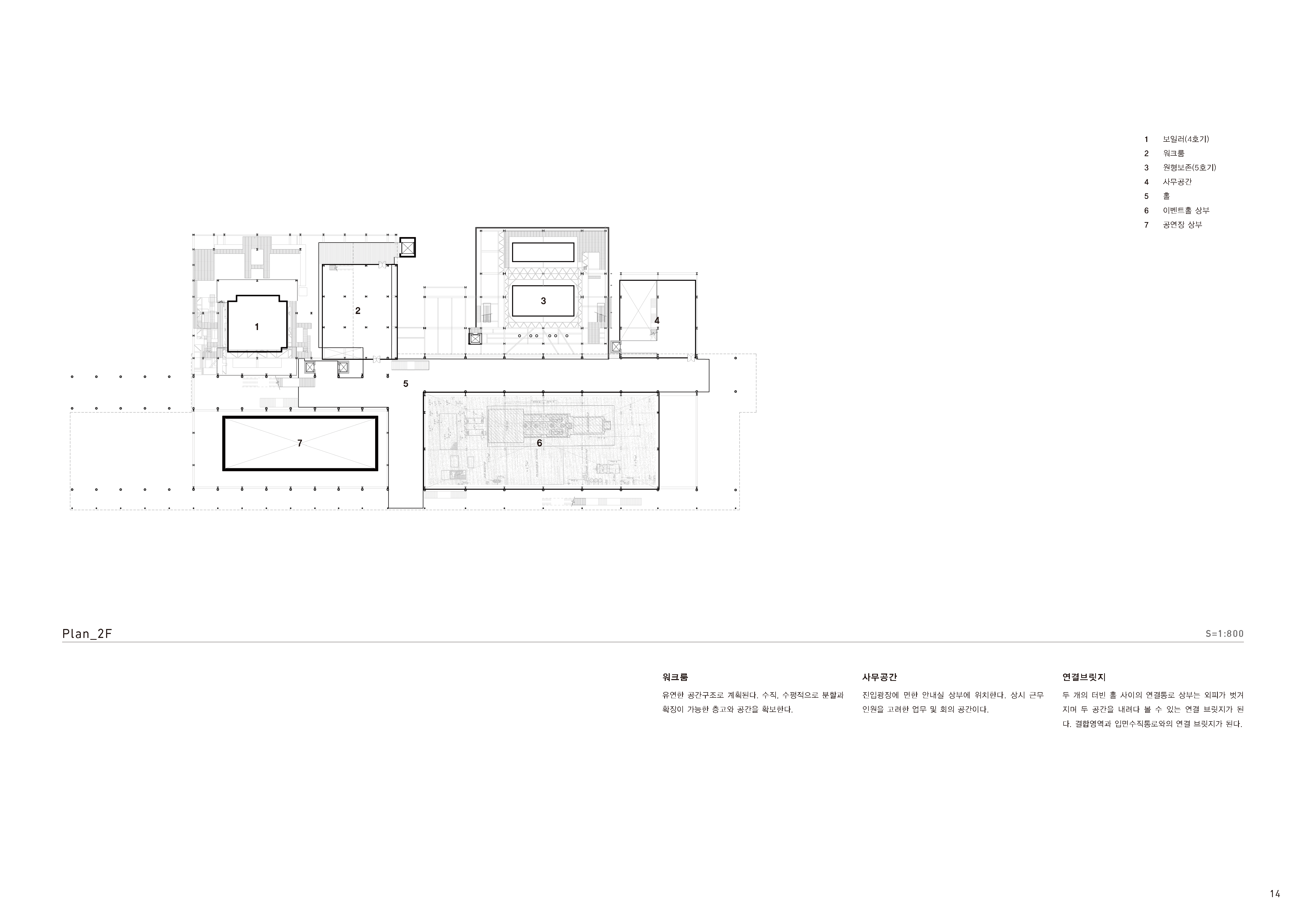
당인리 화력발전소
Year: 2018
	
	Program: Cultural
Location: Seoul, KR
Status: Competition
	Location: Seoul, KR
Status: Competition
GFA: 24782.31
Site Area: 118.779
Bldg Area: 7150.91
Story: B2 / 6F
Site Area: 118.779
Bldg Area: 7150.91
Story: B2 / 6F