︎
×
WORK
NEWS
INFO
+
RoA
HOME
WORK
NEWS
INFO
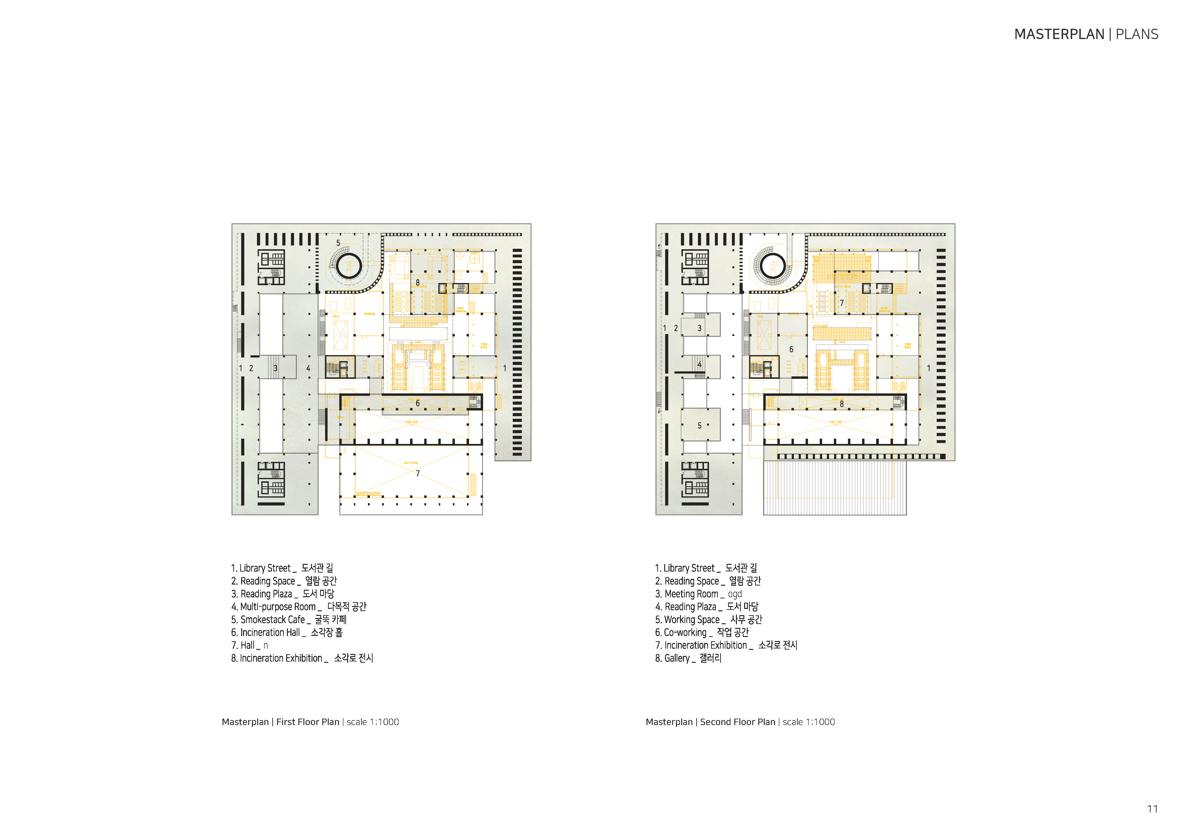
광주 대표도서관
Year: 2020
Program: Cultural
Location: Gwangju, KR
Status: Competition
︎︎︎ To the List
︎︎︎ To the List